Luxury Residential Development in London, KY - The Cumberland Plateau Project
Luxury Residential Development in London, KY - The Cumberland Plateau Project

Innovative Residential Design in London, KY
The Cumberland Plateau project, positioned in the serene landscapes of London, Kentucky, marks a new chapter in residential design. Helmed by the visionary Dorian Bahr and Dorian Development, the initiative breaks from convention, delivering high-end living spaces that not only meet but exceed local and state safety and quality standards. With a thoughtful architectural blueprint, these homes redefine luxury and functionality for discerning homeowners.
Building Strong Foundations through Collaboration
Central to the success of the Cumberland Plateau project is the unmatched groundwork laid by highly engaged contractors. Through regular, intensive site visits, a mutual commitment to excellence and accountability is reinforced, creating a robust foundation for the project. This strategic collaboration underpins the development, ensuring fluid evolution and preempting potential complications.
Advancing Residential Construction with Expert Oversight
The ongoing operations at the Cumberland Plateau project stand as a testament to the seamless logistics and specialized expertise steering the development. Seasoned professionals maintain rigorous oversight, allowing the project to advance without a hitch. This proven experience is vital to preserving the high standards expected throughout construction and ensures that the natural beauty of London, Kentucky, is honored.
A Culture of Safety and Conscientious Building
Safety is not an afterthought in the Cumberland Plateau project—it is a guiding principle. Every step is taken to adhere to stringent safety protocols, affirming a commitment to creating a risk-free workspace. This endeavor does more than construct buildings; it cultivates a culture that values secure, thoughtful construction practices, integrally integrating every element from mechanical to electrical, prioritizing well-being for all.
Commitment to Post-construction Quality
Upon completion, the Cumberland Plateau project pledges ongoing quality with a robust one-year warranty covering craftsmanship and materials. This guarantee signifies a deep-seated commitment to excellence, enhancing the homeowner's experience and ensuring lasting satisfaction beyond the immediate scope of construction activities.
Pioneering Residential Development Documented
The diligent documentation associated with the Cumberland Plateau project captures the essence of pioneering residential design. Far from being a mere chronicle of the development, these records exhibit the determination to elevate living standards in Kentucky, combining timeless beauty with modern building innovation.
Visionary Legacy in Kentucky's Home Design
The evolving story of the Cumberland Plateau project in London, Kentucky, narrates a revolutionary approach to what defines 'home.' Through meticulous planning, a steadfast dedication to safety, and a harmonious relationship with nature, this project transcends traditional building practices. It is a commitment, carved into the landscape, setting the foundation for Kentucky’s residential future.
Project Services
- Architectural Planning - Architectural planning at DorianBahr involves the initial phase of conceptualizing a project, focusing on understanding client needs, the site's potential, and integrating innovative design principles. This service lays the foundation for a project, ensuring that every subsequent step aligns with the envisioned aesthetic, functionality, and sustainability goals. 
- Space Planning- Space planning is a critical service that optimizes the use of space within a structure to achieve a more functional and efficient layout. DorianBahr's expertise in space planning considers factors such as flow, usage, and aesthetics, ensuring that every area serves its purpose beautifully and effectively. 
- Furniture, Fixtures, and Equipment (FF&E)- DorianBahr's FF&E service entails the selection and installation of all movable furniture, fixtures, and equipment that are not permanently attached to the building structure. This service encompasses everything from furniture layouts, lighting fixtures, and technology equipment to window treatments and decorative accessories. It plays a pivotal role in enhancing both the functionality and aesthetics of a space. With a keen eye for design and a comprehensive approach, Dorian Bahr ensures that these elements reflect the client's style and meet the practical demands of their daily lives, creating harmonious and livable environments. 
- Construction- DorianBahr offers comprehensive construction services that bring the project's vision to life. This entails meticulous execution of architectural plans, space planning designs, and construction documents, ensuring every detail from the floor plans, kitchen and bathroom remodels, to ADA compliant universal design bathrooms, and FF&E installations, is implemented with precision and quality. DorianBahr's construction service is the culmination of the design-build process, transforming conceptual designs into physical structures that adhere to the highest standards of craftsmanship and compliance. By overseeing the construction phase, Dorian Bahr ensures a seamless transition from planning to execution, maintaining design integrity and client satisfaction throughout the process. 
- Project ManagementDescribe the item or answer the question so that site visitors who are interested get more information. You can emphasize this text with bullets, italics or bold, and add links.
- As BuiltDescribe the item or answer the question so that site visitors who are interested get more information. You can emphasize this text with bullets, italics or bold, and add links.
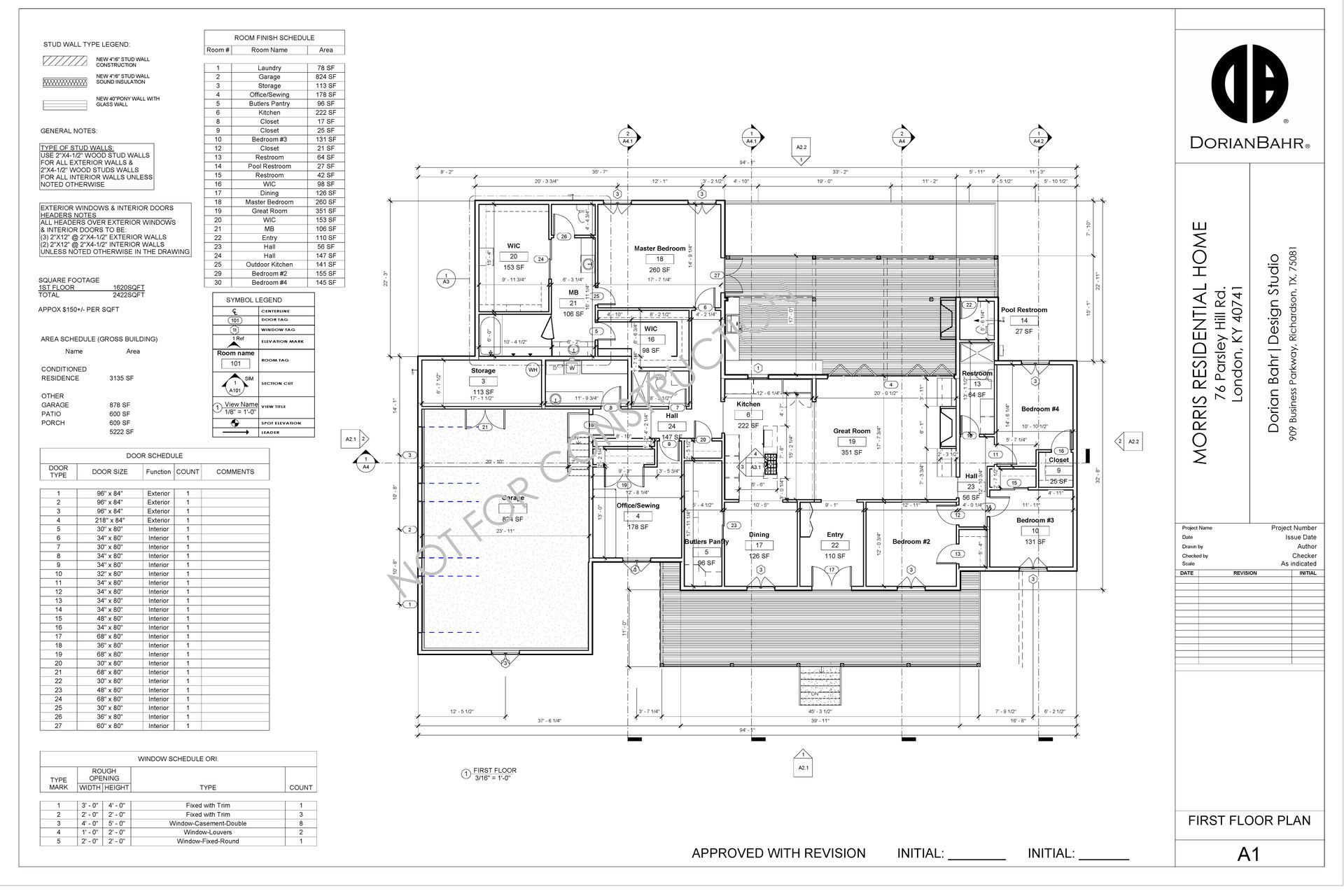
- Floor Plan- DorianBahr provides comprehensive floor plan services, delivering detailed layouts of each level of a building or home. These plans are vital for understanding the space distribution, room sizes, and the relationship between different areas, serving as a blueprint for both construction and interior design efforts. 
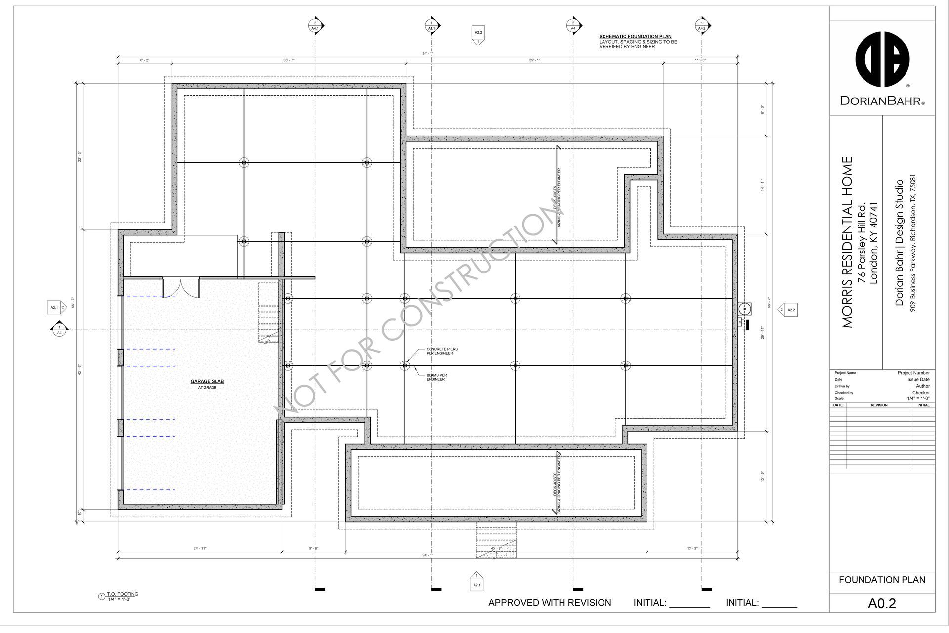
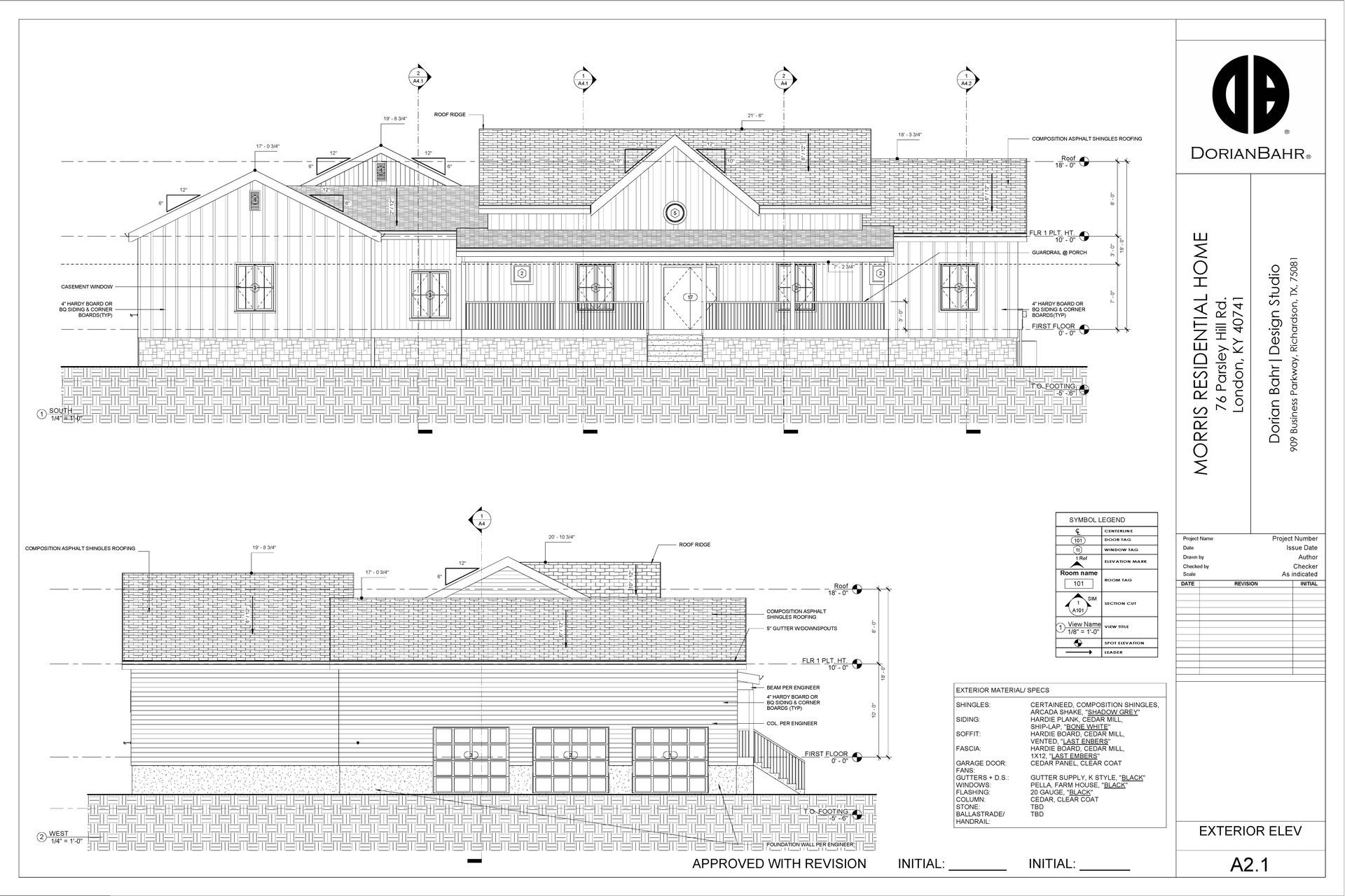
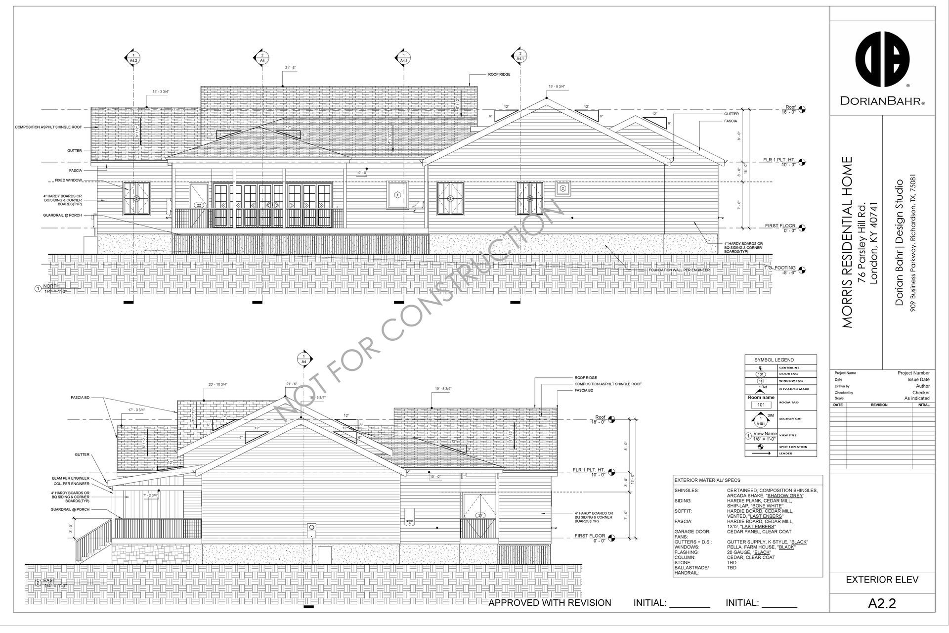
- Construction Documents- Construction documents are a critical component of DorianBahr’s services, encompassing detailed drawings and specifications for the construction team. These documents guide the building process, ensuring that the construction adheres to the design intent, complies with regulations, and meets quality standards. 
- Landscape Design- Landscape design by DorianBahr transcends the traditional boundaries of outdoor aesthetics to create harmonious extensions of indoor living spaces. This service encompasses a thorough examination of the natural environment, climate considerations, and the architectural ethos of the project. By integrating native vegetation, sustainable practices, and innovative hardscape designs, the landscapes curated not only amplify the beauty of the architectural project but also promote biodiversity and environmental consciousness. From serene garden spaces to functional outdoor living areas, DorianBahr's landscape designs offer a seamless transition between the interior and exterior, enhancing the overall enjoyment and value of the property. 
- Lighting Design- DorianBahr’s approach to lighting design focuses on illuminating the project's architectural strengths while ensuring energy efficiency and occupant comfort. This service crafts bespoke lighting solutions that accentuate the unique features of a structure and its surroundings. Through strategic placement and the selection of fixtures, lighting is employed not just for functionality but as an artistic medium, shaping how the spaces are perceived and experienced. Both interior and exterior lighting designs are developed to establish ambience, improve safety, and highlight key architectural and landscape elements, ensuring that the project is showcased to its full potential at all times. 
- Exterior Design- DorianBahr elevates residential projects by harmonizing architectural elements, material selection, and color schemes with the home's natural and neighborhood setting, ensuring durability, aesthetic appeal, and environmental sustainability. This approach crafts personalized exteriors that reflect homeowners' styles and enhance the home's interaction with its surroundings, encompassing facade renovations, outdoor living spaces, and smart technology integration. By combining this with architectural planning, space planning, construction documents, kitchen and bathroom remodels, ADA-compliant designs, along with landscape and lighting design, DorianBahr offers a holistic, innovative, and client-centered solution to create spaces that are not only aesthetically captivating and functional but also sustainable and tailored to the residents' lifestyle, ensuring every aspect of the home, from structure to exterior design, is thoughtfully considered and resonant with those who inhabit them. 
- KitchenDescribe the item or answer the question so that site visitors who are interested get more information. You can emphasize this text with bullets, italics or bold, and add links.
- Interior Design- Transform your living spaces into a reflection of your personal style and comfort with DorianBahr's residential interior design services. From modern minimalist to classic, our expert designers craft bespoke environments that elevate everyday living. Embrace a harmonious blend of beauty and functionality tailored specifically for your home. 
SEARCH THE KNOWLEDGE BASE
SHARE THIS ⤵
The greatest luxury in life is comfort!
Welcome to DorianBahr 
Where Visionary Design Meets Architectural Mastery
 
At DorianBahr, we believe that your space is a sanctuary of taste and a testament to your foresight. As connoisseurs of luxury design and architectural innovation, we dedicate ourselves to crafting environments that transcend the ordinary, shaping the extraordinary into reality.
For the Discerning Patron: Boutique Commercial Elegance
Envision your commercial space as a hub of elegance and style, attracting clientele with its unique character and sophistication. DorianBahr specializes in creating bespoke commercial venues that embody your brand's essence and upscale ambitions.
Tailored Residential Grandeur: Foundations of Your Future
Your home is more than a residence; it is a personal landmark. With DorianBahr's bespoke design and architectural planning services, lay the foundations for a home that resonates with grandeur, customized to the minutiae of your lifestyle and aspirations.
Partner with DorianBahr to Elevate Your Project
Together, let us construct the future blueprint of luxury living and commercial finesse. Contact us today to embark on a journey of impeccable design and architectural distinction.
Embrace the DorianBahr Distinction – Your Blueprint to Unparalleled Elegance Awaits.


 
  
  
  
  
  
 


























