The All-New Juno’s Liquor Store: Where Sophistication Meets Texan Charm
Juno’s Liquor Store by DorianBahr & Stooc G.C.: Elevating Retail Environments in Las Colinas, Texas

A New Chapter in Beverage Retail: DorianBahr Teams Up with Stooc G.C. at Juno’s Liquor Store
Elevating the retail landscape, DorianBahr, in partnership with Stooc G.C., introduces the reinvented Juno’s Liquor Store in the bustling community of Las Colinas, Texas. This collaboration signals a transformative approach to retail environments, combining elegant design with practical ingenuity to deliver a shopping experience that embodies refinement and local flair.
Juno’s Liquor Store: A Las Colinas Destination Where Design Meets Practicality
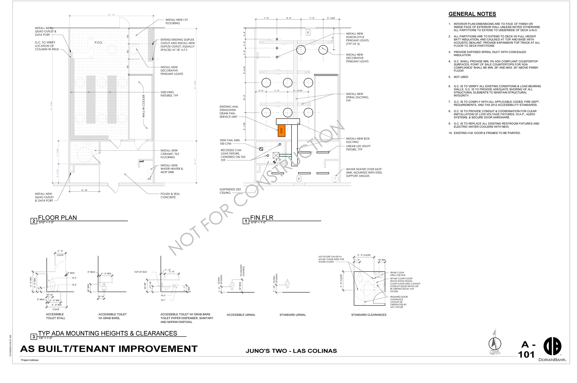
Strategically nestled at 313 E. Los Colinas Blvd., Juno’s Liquor Store unfolds in a space transformed by the innovative vision of DorianBahr. Attention to detail dominates the design philosophy, with high-end vinyl flooring and carefully selected eco-conscious ceramic tiles reflecting both style and functionality.
The intelligent layout promotes an effortless journey from the entrance to the point of sale, contributing to a seamless and engaging retail expedition. Custom lighting design elevates the ambiance, inviting guests to discover and enjoy a curated collection of libations under energy-efficient LED and chic pendant illumination.

Enhanced Features and Design Philosophy
Illumination and Accessibility: Cornerstones of Innovative Retail Design
Ample windows flood the store with natural sunlight, accentuating artfully crafted displays. The aesthetic is further enhanced by functional spiral ducting – not only serving as an aesthetic feature but also ensuring a pleasant shopping climate all year round.
The store presents DorianBahr's unwavering commitment to fusing beauty and utility, visible from the user-friendly, ADA-compliant restrooms to the sturdy checkout counters.
Architectural Planning

Lay the foundation for a state-of-the-art wellness and fitness center with DorianBahr's architectural planning services. Our expert designs prioritize functionality, flow, and the unique needs of wellness spaces to create inspiring and efficient environments.
Space Planning
Maximize the potential of your wellness or fitness facility with DorianBahr's strategic space planning. Tailored to accommodate equipment, classes, and individual wellness journeys, our layouts are designed for optimal use and guest comfort.
Furniture, Fixtures, and Equipment (FF&E)
Select high-quality, durable FF&E for your wellness center with DorianBahr’s expert curation. From comfortable seating to state-of-the-art fitness equipment, we ensure your selections enhance the user experience and withstand rigorous use.
Project Management
Seamlessly manage your wellness center's construction project with DorianBahr's comprehensive project management services. From initial planning to final inspection, we ensure a smooth, timely, and on-budget execution.
As Built
Document the precise outcome of your wellness or fitness center project with DorianBahr's as-built services. Essential for future maintenance or expansion, these documents provide a detailed record of the finished construction.
Floor Plan
Design a floor plan that energizes and encourages with DorianBahr's wellness/fitness center services. Our plans balance space for equipment, personal training, and group classes, creating an inviting and motivational environment.
Construction Documents
Ensure accuracy and compliance in your build with DorianBahr's comprehensive construction documents for wellness and fitness centers. Detailed and clear, our documents facilitate effective construction and adherence to all regulations.
Lighting Design
Illuminate your wellness or fitness center in a way that inspires and invigorates with DorianBahr's lighting design services. Our strategic lighting solutions promote energy, focus, and the overall well-being of your guests.
Acoustic Design
Achieve the perfect sound environment in your wellness or fitness center with DorianBahr's acoustic design services. We focus on optimizing sound for different zones—whether it's reducing noise in relaxation areas or enhancing acoustics for high-energy classes, our designs ensure an audibly pleasing experience for all users.
Interior Design
Transform your wellness or fitness center into a sanctuary of health with DorianBahr's interior design services. Our designs create an atmosphere that motivates and soothes, incorporating elements that stimulate comfort, focus, and rejuvenation. Tailored color schemes, materials, and decor act to reinforce users' commitment to their wellness journey while ensuring a visually cohesive and appealing space.
Exterior Design
Create an exterior that beckons guests into a transformative wellness journey with DorianBahr's exterior design services for fitness centers. Our designs reflect the vitality and energy of the activities within, establishing a strong and inviting brand presence.
A Seamless Process
The standout project like Juno’s Liquor Store illuminates the seamless partnership between DorianBahr’s design expertise and Stooc G.C.’s construction prowess. Their collaborative process involves meticulous planning and detailed execution to bring any vision to life.
For DorianBahr and Stooc G.C., transforming Juno’s Liquor Store represents a deliberate stride towards reimagining retail spaces as conduits of aesthetic pleasure and operational excellence. This endeavor encapsulates their conviction in the transformative power of design, influencing not just the look and feel of a space but also enriching the customer journey and creating lasting impressions.
Juno's Liquor Store Recognized with Prestigious Award Nominations
Exciting news from the heart of Las Colinas, Texas: Juno’s Liquor Store has been nominated for two prominent design awards, solidifying its position as a groundbreaking retail destination where sophistication meets Texan charm.
We are honored to announce that Juno’s has been nominated for Best of 2025 by Design Journal and is an ADEX Award Nominee for 2026. These nominations celebrate our commitment to innovation, sustainability, and design excellence in retail interiors, as well as the collaborative efforts that brought Juno's vision to life.
What Makes Juno’s Stand Out?
Juno’s Liquor Store is more than a retailer of fine spirits—it’s a statement of elegance and functionality. The nominations recognize the meticulous design process and stellar features of Juno’s, including:
- As-Built Documentation: Establishing a foundation of precision and authenticity that drove the entire process.
- Tenant Improvements: Adapting the space to reflect Juno’s unique brand and maximize both practicality and style.
- Interior Design: Combining sleek sophistication with Texan charm to create a memorable retail experience.
- Lighting Design: Harnessing custom, energy-efficient lighting solutions that emphasize warmth, detail, and aesthetics.
- Project Management: Delivering Juno’s vision—from concept to completion—with seamless execution and unwavering dedication.
These accolades recognize Juno’s as a leader in pushing the boundaries of design and redefining retail spaces for modern customers.
About The Awards
The Best of 2025 by Design Journal highlights the year’s most exceptional contributions to design across various industries. This honor celebrates projects that demonstrate innovation, creativity, and transformative impact.
The ADEX Award (Awards for Design Excellence) is one of the most prestigious recognitions in architecture and interior design, spotlighting projects that showcase superior design, sustainability, and functionality. Being nominated for 2026 signifies the lasting impact of Juno’s design on the industry.
What’s Next
As we await the final results, we take pride in seeing Juno’s Liquor Store celebrated alongside visionary projects in the world of design. These nominations reflect our commitment to creating spaces that inspire, engage, and elevate everyday experiences.
We invite you to celebrate this milestone with us as we continue to embrace innovation and excellence in everything we do. Stay tuned for updates as the awards results are announced!
Embark on a journey through our comprehensive design process and bespoke services at dorianbahr.com.
For those looking to embark on a design or construction journey, whether a grand enterprise or a modest update, DorianBahr and their partners stand ready to bring visions to reality with unparalleled craftsmanship and design innovation.
Visit Juno’s Liquor Store – Las Colinas to witness firsthand the meticulous craftsmanship and design excellence that transformed the space. It’s more than just a place to buy liquor; it’s a showcase of what can be achieved when innovative design and meticulous construction come together.

SEARCH THE KNOWLEDGE BASE
SHARE THIS ⤵
The greatest luxury in life is comfort!
Welcome to DorianBahr
Where Visionary Design Meets Architectural Mastery
At DorianBahr, we believe that your space is a sanctuary of taste and a testament to your foresight. As connoisseurs of luxury design and architectural innovation, we dedicate ourselves to crafting environments that transcend the ordinary, shaping the extraordinary into reality.
For the Discerning Patron: Boutique Commercial Elegance
Envision your commercial space as a hub of elegance and style, attracting clientele with its unique character and sophistication. DorianBahr specializes in creating bespoke commercial venues that embody your brand's essence and upscale ambitions.
Tailored Residential Grandeur: Foundations of Your Future
Your home is more than a residence; it is a personal landmark. With DorianBahr's bespoke design and architectural planning services, lay the foundations for a home that resonates with grandeur, customized to the minutiae of your lifestyle and aspirations.
Partner with DorianBahr to Elevate Your Project
Together, let us construct the future blueprint of luxury living and commercial finesse. Contact us today to embark on a journey of impeccable design and architectural distinction.
Embrace the DorianBahr Distinction – Your Blueprint to Unparalleled Elegance Awaits.




























