Innovative Early Childhood Education Center Construction in Dallas | DorianBahr
Revolutionizing Childhood Development Through Design

Project Update: Genesis Foundation Child Care & Learning Center is Now Permitted
Architectural Marvel Meets Early Childhood Education
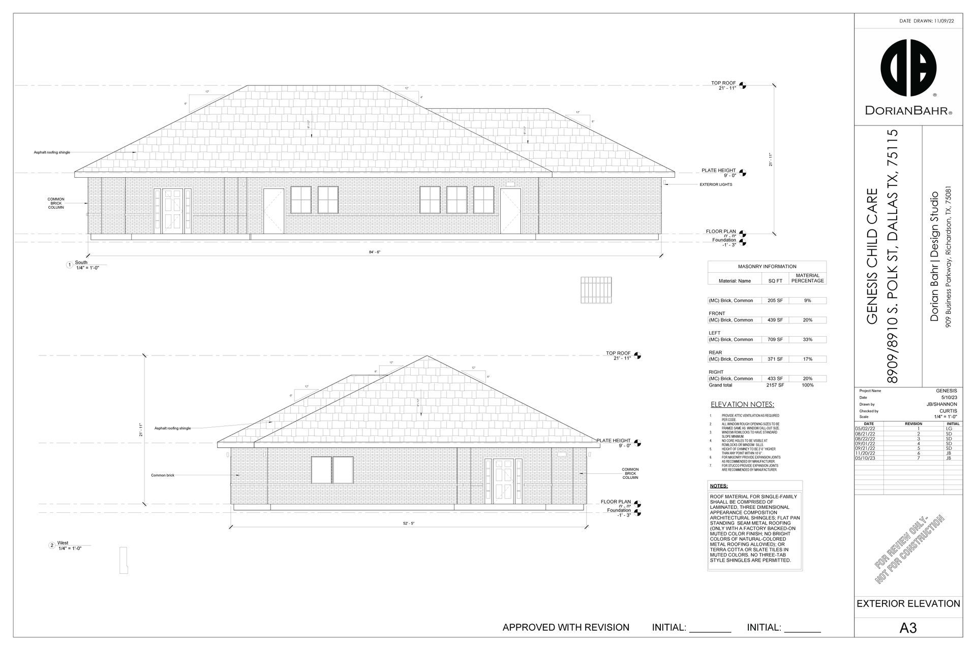
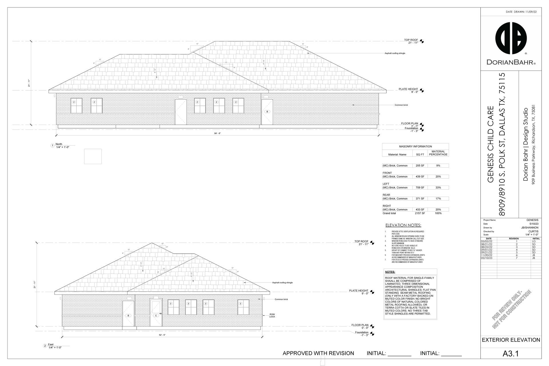
DorianBahr's Genesis Foundation Child Care & Learning Center, which has reached a significant milestone by receiving its building permits, is currently under construction in Dallas, Texas. This development sets a new benchmark in the realm of early childhood education facilities. With architecture that marries ingenuity with an unwavering focus on developmental needs, the project is designed to nurture an environment that promotes discovery and learning. The facility's exterior, marked by inviting colors and playful shapes, serves as a testament to the joy and spirit of early learning, now ready to move forward with full legal and regulatory approval.
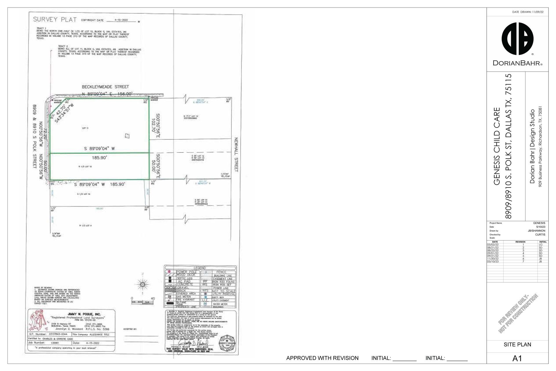
Groundbreaking Site Planning for Enhanced Learning
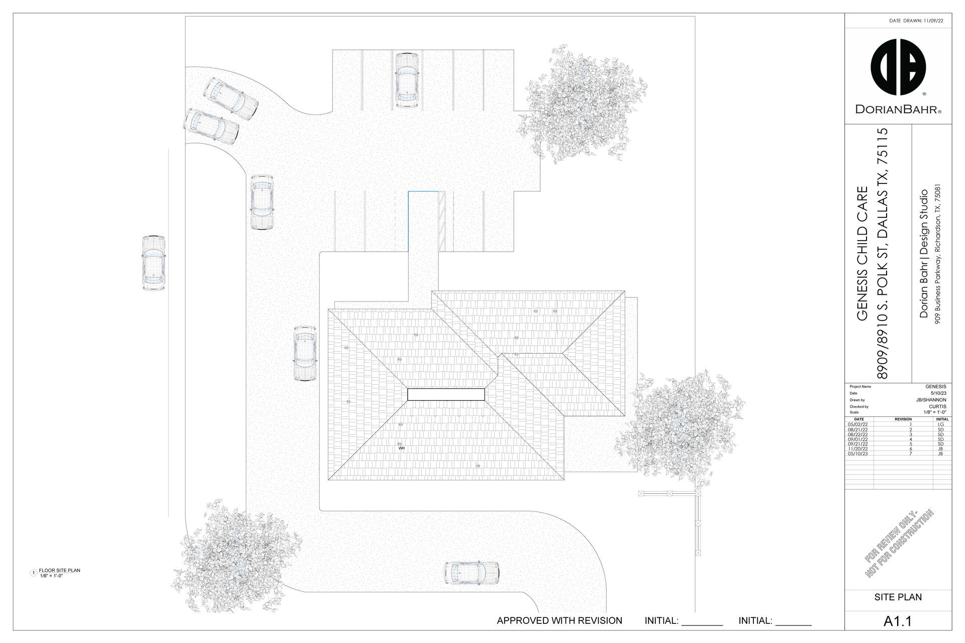
In the heart of Dallas, the site planning for Genesis Foundation Child Care & Learning Center is a testament to thoughtful engineering and a child-centric approach. From secure play areas that foster safe exploration to convenient access for parents, every detail has been meticulously crafted. This ensures a daily experience that is both seamless and safe, underscoring the importance of a functional and welcoming environment in the development of children.
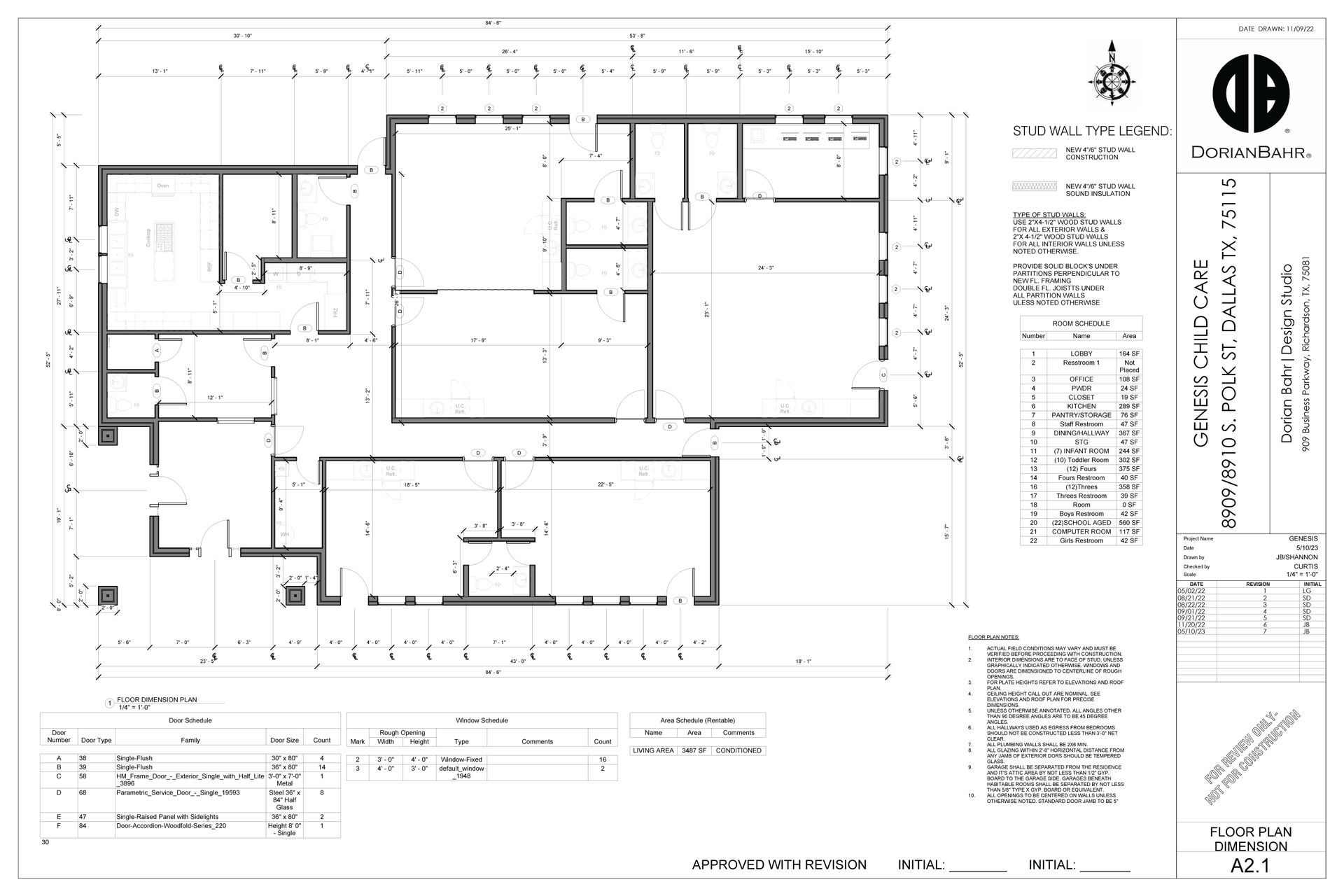
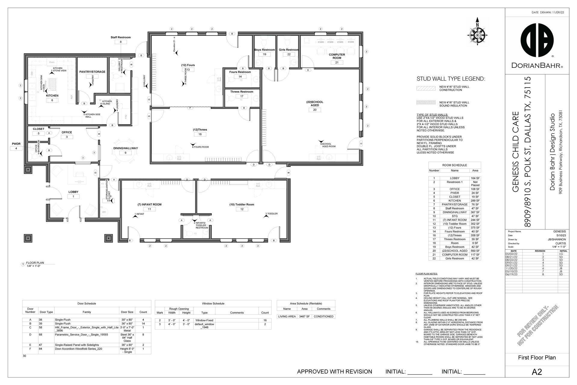
A Sanctuary of Stimulating Interiors
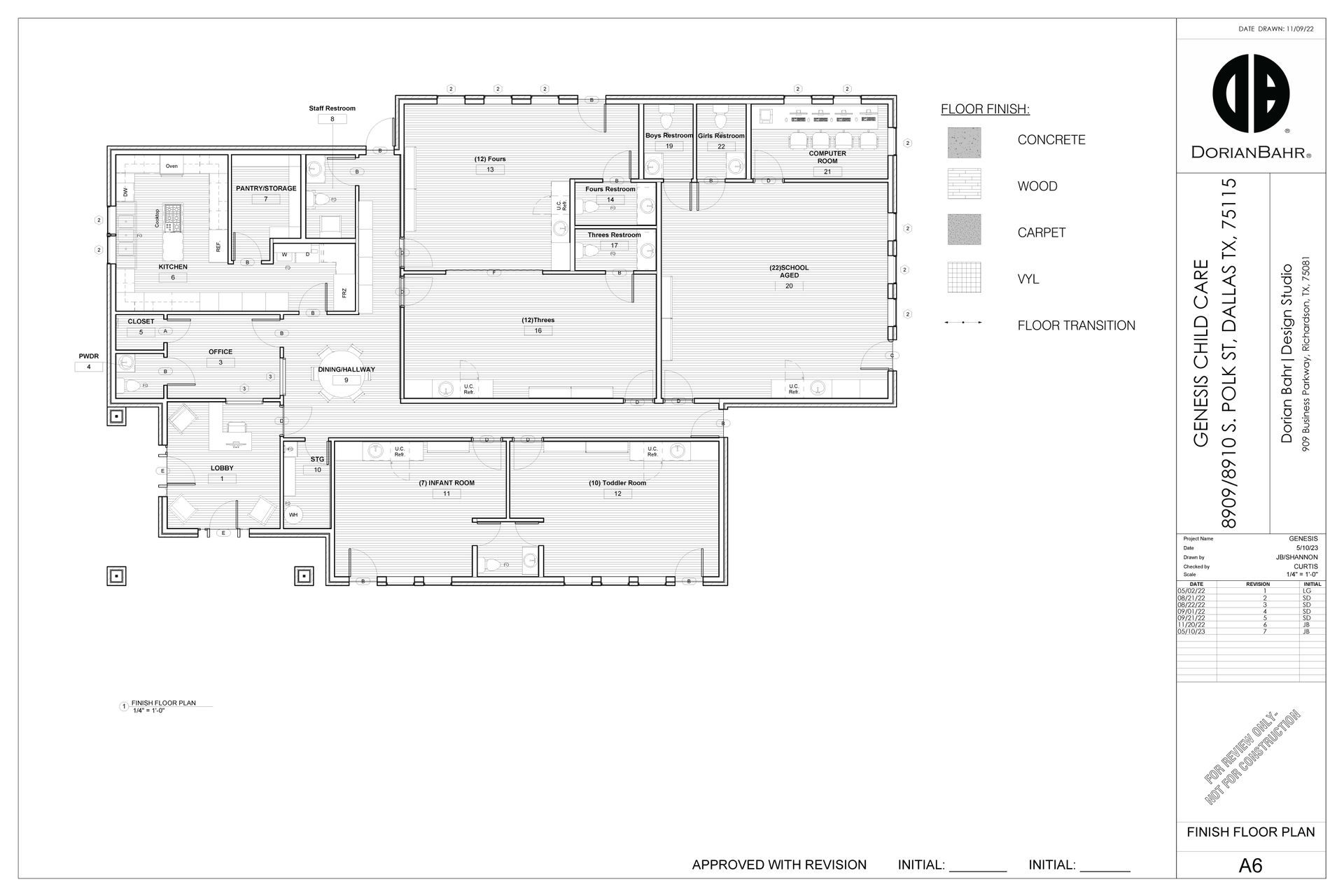
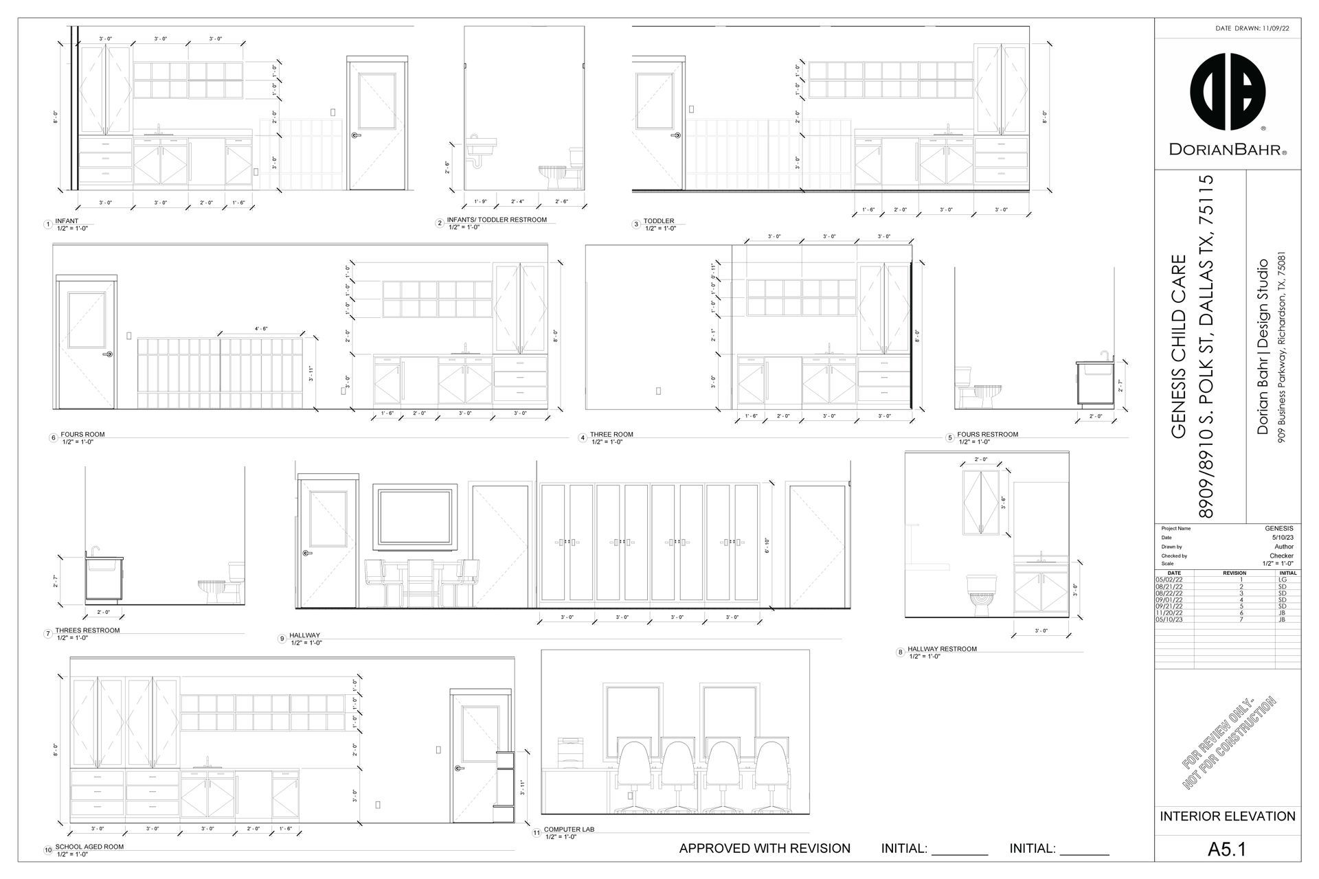
The interior design of the Genesis Foundation Child Care & Learning Center transcends traditional educational spaces, offering a sanctuary of stimulation and growth. Classrooms double as havens for imaginative play and learning, with age-appropriate furnishings and vibrant colors sprinkled throughout. This approach not only enhances the aesthetic appeal but also supports the social and cognitive development crucial during the early years.
Collaborative Excellence in Construction and Engineering
The construction of the Genesis Foundation Child Care & Learning Center showcases a commendable collaboration among industry leaders. Spearheaded by the expertise of Spears Engineering and Lighthouse Engineering, the facility promises structural resilience and a foundation that stands the test of time.
Crafting the Future: Masterful Construction Techniques
The construction journey of the Genesis Foundation Child Care & Learning Center is marked by master craftsmanship and meticulous attention to detail. Contributions from Het of Texas Roofing and Performance Drywall Services underscore the project's commitment to durability and quality. With electrical installations by Texas Lonestar Pride and elegant interior finishes by Dougs Plumbing and ABC Millworks, the facility is set to be a beacon of both function and form in Dallas, Texas.
Visionary Design Shaping Dallas's Educational Landscape
With the project now fully permitted, the Genesis Foundation Child Care & Learning Center is poised to serve as a cornerstone in redefining early childhood education spaces in Dallas. Through an integrated approach to architectural and interior design, DorianBahr is not just constructing a building but fostering a community hub that prioritizes the wellbeing and development of young learners. This project underscores a heartfelt commitment to excellence and a brighter future for Dallas families.
PROJECT SERVICES
- Architectural Planning - DorianBahr offers specialized architectural planning services tailored to meet the needs of childcare facilities. Emphasizing safety, stimulation, and sustainability, we create spaces that are welcoming, secure, and conducive to learning and development. 
- Space Planning- Enhance your childcare center with DorianBahr's strategic space planning. Our plans are designed to foster a nurturing environment, promote interactive learning, and ensure the safety and supervision of all children, facilitating an effective childcare operation. 
- Furniture, Fixtures, and Equipment (FF&E)- Equip your childcare facility with child-friendly and durable FF&E. DorianBahr selects items that are safe, easy to clean, and designed to support the developmental needs of children, ensuring a comfortable and enriching learning environment. 
- Construction- Build or renovate your childcare facilities with DorianBahr's construction services, tailored to the unique needs of early childhood education environments. We focus on creating spaces that are safe and adaptable to the evolving needs of children. 
- Project Management- With DorianBahr's precise project management, oversee the construction of your childcare facilities with an emphasis on safety, compliance, and the optimal use of resources, ensuring projects are completed on time and within budget. 
- As Built- Keep accurate records of your childcare facility's construction details with DorianBahr’s as-built documentation, crucial for ongoing maintenance, safety, and future modifications, enhancing your facility's lifecycle management. 
- Floor Plan- Our floor plans are meticulously crafted to support the care and education of young children. DorianBahr designs prioritize easy supervision, child-centric accessibility, and spaces that stimulate learning and interaction. 
- Construction Documents- DorianBahr produces detailed construction documents crucial for the development and renovation of childcare facilities. These documents help ensure all construction meets the specific needs for child safety and educational goals. 
- Lighting Design- Engage DorianBahr for lighting design that focuses on creating bright, energy-efficient environments. Proper lighting is essential for children’s activities, safety, and overall well-being in childcare settings. 
- Exterior Design- With DorianBahr’s exterior design services, create outdoor spaces that invite exploration and play while ensuring safety. Our designs integrate natural elements and play areas that encourage physical activity and interaction. 
- Childcare Facility Design- Dorian Bahr’s childcare facility design services specialize in blending innovation with practicality to create environments that are safe, stimulating, and sustainably built for children. Our tailored approach ensures each facility meets stringent safety standards while fostering an engaging space that promotes the physical, intellectual, emotional, and social development of young minds. Through a meticulous design process that emphasizes the use of non-toxic materials, ergonomic furniture, and vibrant aesthetics, we prioritize child-centric spaces that cater to the dynamic needs of childhood development. Focused on delivering operational efficiency and compliance with all regulatory standards, Dorian Bahr sets a new benchmark in childcare facility design, where every element is crafted with the well-being and growth of children in mind. 
- 3D Rendering- Bring your vision to life before the build begins with DorianBahr's 3D rendering services. Our advanced rendering technology allows you to visualize architectural and interior design projects in stunning detail and realism. Perfect for homeowners and developers, these visualizations help you make informed decisions and adjustments preemptively. 
SEARCH THE KNOWLEDGE BASE
SHARE THIS ⤵
The greatest luxury in life is comfort!
Welcome to DorianBahr 
Where Visionary Design Meets Architectural Mastery
 
At DorianBahr, we believe that your space is a sanctuary of taste and a testament to your foresight. As connoisseurs of luxury design and architectural innovation, we dedicate ourselves to crafting environments that transcend the ordinary, shaping the extraordinary into reality.
For the Discerning Patron: Boutique Commercial Elegance
Envision your commercial space as a hub of elegance and style, attracting clientele with its unique character and sophistication. DorianBahr specializes in creating bespoke commercial venues that embody your brand's essence and upscale ambitions.
Tailored Residential Grandeur: Foundations of Your Future
Your home is more than a residence; it is a personal landmark. With DorianBahr's bespoke design and architectural planning services, lay the foundations for a home that resonates with grandeur, customized to the minutiae of your lifestyle and aspirations.
Partner with DorianBahr to Elevate Your Project
Together, let us construct the future blueprint of luxury living and commercial finesse. Contact us today to embark on a journey of impeccable design and architectural distinction.
Embrace the DorianBahr Distinction – Your Blueprint to Unparalleled Elegance Awaits.


 
  
  
  
  
  
 










































