Mobile DJ-Oriented Commercial Venue Renovation
Setting the Stage for Unforgettable Memories: Mobile DJ Services Venue Enhancement

Embarking on an exciting venture, we are set to renew a commercial space into an electrifying, fully-equipped venue perfect for the spirited events hosted by Mobile DJ Services LLC of Allen, Texas. This revamping project is uniquely tailored to embody the essence of the top-notch entertainment that Rick, Rosie, and their team provide to their clients. Our aim is to create a space that not only complements their services but also elevates the entire experience of their guests.
Our design strategy includes high-tech sound and lighting enhancements, a captivating ambiance that reflects their 35 years of music entertainment expertise, and the integration of a mirror booth space for interactive guest enjoyment. Each upgrade is meticulously planned to enhance the quality and delivery of the Mobile DJ Services team's performances.By focusing on these specific renovations and capitalizing on the unique demands of a mobile DJ service and event hosting, the project promises to deliver an unparalleled venue experience that appeals to clientele looking to make their occasions stand out with professional sound, engaging lighting, and a high-quality setting.
As we embark on transforming a venue to reflect the dynamic spirit of Mobile DJ Services, our project narrative unfolds into a series of deliberate and thoughtful enhancements designed to maximize both ambiance and functionality.
Sound and Lighting Improvements:
Imagine stepping into a space where every note and beat of the music is crystal clear, tailored perfectly to Mobile DJ Services’ extensive music library and their dynamic DJ mixing skills. Through sophisticated acoustic engineering modifications, the venue's sound quality will become impeccable, fully immersing every guest in the sonic experience. Complementing this auditory enhancement, the installation of state-of-the-art dance, monogram, and uplighting systems will not just illuminate the venue but also morph it into a vibrant canvas that changes to match the theme of every event, energizing the atmosphere and setting the stage for unforgettable nights.
Multimedia and Entertainment Facilitation:
In one corner, a dedicated area emerges for the mirror booth, designed with privacy features to not only draw guests in for interactive fun but also to create lasting memories encapsulated in pictures. Nearby, a new video mixing facility will be integrated, rising to meet the high standards of Mobile DJ Services' visual presentations and adding a layer of multimedia magic to each event.
Functional Aesthetics and Space Flow:
Our plans also call for a transformation of the staging area to make it easily customizable for different event scales. This involves streamlining the set-up and tear-down processes, allowing the energetic team at Mobile DJ Services to operate with unparalleled efficiency. Aesthetic enhancements will breathe life into the venue, with lively, dynamic decor that resonates with the pulse of a DJ's performance, enveloping every guest in a celebratory vibe from the moment they enter.
Client Comfort and Experience Enhancement:
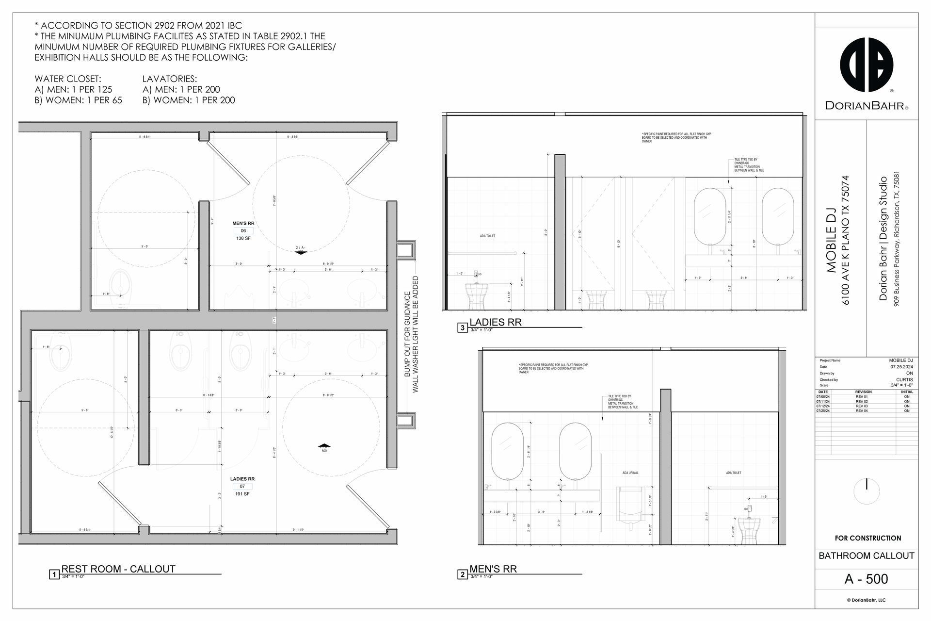
No detail is too small in our quest for perfection. The restrooms will undergo a modern overhaul, mirroring the clean and professional image upheld by Rick, Rosie, and their team. Also envisaged is the creation of a cozy waiting and relaxation area, offering a comfortable retreat for guests during events—a testament to thoughtful hospitality.
Safety and Accessibility:
Finally, our comprehensive review of the venue’s layout ensures full compliance with the Americans with Disabilities Act, making sure that it’s accessible and welcoming to all guests. The implementation of advanced fire safety technology will fortify the safety of the venue, safeguarding the well-being of both the Mobile DJ Services team and their valued guests.
Through this narrative of transformation, the venue not only becomes a physical space but a pivotal foundation for the art and heart of what Mobile DJ Services stands for—setting each event apart as a masterpiece of unforgettable experiences.
SEARCH THE KNOWLEDGE BASE
SHARE THIS ⤵
The greatest luxury in life is comfort!
Welcome to DorianBahr
Where Visionary Design Meets Architectural Mastery
At DorianBahr, we believe that your space is a sanctuary of taste and a testament to your foresight. As connoisseurs of luxury design and architectural innovation, we dedicate ourselves to crafting environments that transcend the ordinary, shaping the extraordinary into reality.
For the Discerning Patron: Boutique Commercial Elegance
Envision your commercial space as a hub of elegance and style, attracting clientele with its unique character and sophistication. DorianBahr specializes in creating bespoke commercial venues that embody your brand's essence and upscale ambitions.
Tailored Residential Grandeur: Foundations of Your Future
Your home is more than a residence; it is a personal landmark. With DorianBahr's bespoke design and architectural planning services, lay the foundations for a home that resonates with grandeur, customized to the minutiae of your lifestyle and aspirations.
Partner with DorianBahr to Elevate Your Project
Together, let us construct the future blueprint of luxury living and commercial finesse. Contact us today to embark on a journey of impeccable design and architectural distinction.
Embrace the DorianBahr Distinction – Your Blueprint to Unparalleled Elegance Awaits.




















