Main & Oak: The Blueprint of Culinary and Event Mastery Unbuilt | A DorianBahr Vision
Main & Oak: Unveiling a Masterpiece of Culinary and Event Excellence in Concept

Explore the Conceptual Grandeur of Main & Oak in the Urban Core
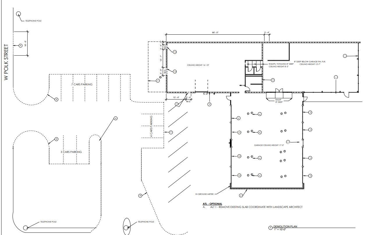
Main & Oak emerged as a visionary concept poised to set a new standard for culinary excellence and event versatility within the vibrant urban core. Spanning 7,800 square feet, this DorianBahr design remained in the realm of possibilities, illustrating how innovative spaces can marry practicality with high-end aesthetics seamlessly.
A Visionary Blend of Dining and Event Hosting at Main & Oak
Imagined as a beacon of both everyday gourmet experiences and exquisite events, Main & Oak was set to become a community cornerstone. DorianBahr's design philosophy was rooted in fostering connections, inviting a unique fusion of modern elegance and community vitality into every aspect of the proposed venue.
Main & Oak's Planned Design: A Synthesis of Intimacy and Grandeur
Despite the grand scale, Main & Oak's layout was intricately planned to exude intimacy across various settings—from casual dining to grand celebrations. Key features such as open-concept kitchens and customizable event spaces underlined the venue's versatility and commitment to innovation and interaction.
PROJECT SERVICES
Architectural Planning

Dorian Bahr offers expert architectural planning services for restaurants, blending cutting-edge design trends with classic aesthetics to create dynamic, functional dining spaces. Our tailored solutions enhance customer experiences, reinforce brand identity, and ensure long-lasting functionality. Trust Dorian Bahr to bring your restaurant vision to life with precision and style.
Space Planning
Maximize your restaurant's functionality and customer satisfaction with Dorian Bahr's strategic space planning services. Our team of experts designs efficient, engaging layouts tailored to enhance dining experiences and operational flow, setting the stage for your restaurant's success.
Furniture, Fixtures, and Equipment (FF&E)
Elevate your restaurant's ambiance with Dorian Bahr's FF&E services. Our curated selections of furniture, fixtures, and equipment combine quality, style, and durability, perfectly complementing your space and supporting your brand's vision.
Construction
Build your dream restaurant with Dorian Bahr's specialized construction services. Our skilled team brings precision, quality, and efficiency to every project, transforming visionary designs into reality with a focus on craftsmanship and timeline adherence.
Project Management
Ensure your restaurant construction project is delivered on time and within budget with Dorian Bahr's professional project management services. Our experienced managers coordinate meticulously with all stakeholders, streamlining processes for a seamless build.
As Built
Dorian Bahr's as-built documentation services for restaurants provide you with detailed, accurate records of your building's final construction. Essential for maintenance and future renovations, these documents are a valuable asset for any restaurant owner.
Floor Plan
Discover the perfect layout for your dining establishment with Dorian Bahr's restaurant floor plan services. Our tailored designs focus on customer flow, operational efficiency, and creating memorable dining experiences.
Construction Documents
Dorian Bahr offers comprehensive construction document services for restaurants, facilitating clear communication and compliance during the building process. Our detailed plans and specifications ensure that your project is built to exact standards.
Lighting Design
Create the ideal ambiance in your restaurant with Dorian Bahr's bespoke lighting design services. Our innovative solutions enhance aesthetics, functionality, and energy efficiency, setting the perfect mood for your guests.
Exterior Design
Make a lasting first impression with Dorian Bahr's exterior design services for restaurants. Our designs not only capture attention but also reflect your brand's identity and ethos, welcoming guests into a unique dining experience.
Restaurant Design
Create a dining environment that delights and attracts customers with DorianBahr's restaurant design services. Our designers specialize in crafting unique, functional, and appealing dining spaces that reflect your culinary ethos and enhance diners’ experiences. From fast-casual spaces to high-end dining, we ensure that every element is perfect.
Venue Design
DorianBahr is at the forefront of reimagining spaces with innovative venue design services that captivate and inspire. Whether it’s for events, hospitality, or entertainment, our designs create memorable experiences by merging brand identity with architectural creativity. Let us transform your venue into an iconic destination.
ACOUSTIC DESIGN
Achieve the perfect harmony of sound and space with DorianBahr's acoustic design services. Our experts specialize in enhancing the auditory experience of any environment, from home theaters to large venues, through strategic design and state-of-the-art technology. Experience clarity and quality sound in every corner of your space.
3D Video Walkthrough
Experience your space before it's built with DorianBahr's 3D video walkthroughs. This valuable service offers a dynamic and immersive viewing experience, providing a virtual tour of your future property. Ideal for architectural presentations, interior design, and real estate showcases, our walkthroughs ensure that every angle and detail is just as you envision.
3D Rendering
Bring your vision to life before the build begins with DorianBahr's 3D rendering services. Our advanced rendering technology allows you to visualize architectural and interior design projects in stunning detail and realism. Perfect for homeowners and developers, these visualizations help you make informed decisions and adjustments preemptively.
The Legacy of Main & Oak Through Detailed Renderings and As-Built Plans
DorianBahr's as-built documentation and renderings live on as a testament to the potential of Main & Oak. Envisioned with luxurious finishes, cutting-edge technology, and areas for dynamic social exchanges, Main & Oak's detailed plans offer enduring inspiration for future designs that aim to weave local culture into sophisticated event backdrops.
Main & Oak: A Reflective Beacon of What Could Have Been
Main & Oak continues to resonate as an unrealized icon of design foresight in the hospitality industry. The concept stands tall, not for its physical presence, but for its potential to revolutionize communal engagement through the lens of innovative architecture and interior design—and perhaps, will one day inspire a space that fully realizes this blend of art, technology, and community.
SEARCH THE KNOWLEDGE BASE
SHARE THIS ⤵
The greatest luxury in life is comfort!
Welcome to DorianBahr
Where Visionary Design Meets Architectural Mastery
At DorianBahr, we believe that your space is a sanctuary of taste and a testament to your foresight. As connoisseurs of luxury design and architectural innovation, we dedicate ourselves to crafting environments that transcend the ordinary, shaping the extraordinary into reality.
For the Discerning Patron: Boutique Commercial Elegance
Envision your commercial space as a hub of elegance and style, attracting clientele with its unique character and sophistication. DorianBahr specializes in creating bespoke commercial venues that embody your brand's essence and upscale ambitions.
Tailored Residential Grandeur: Foundations of Your Future
Your home is more than a residence; it is a personal landmark. With DorianBahr's bespoke design and architectural planning services, lay the foundations for a home that resonates with grandeur, customized to the minutiae of your lifestyle and aspirations.
Partner with DorianBahr to Elevate Your Project
Together, let us construct the future blueprint of luxury living and commercial finesse. Contact us today to embark on a journey of impeccable design and architectural distinction.
Embrace the DorianBahr Distinction – Your Blueprint to Unparalleled Elegance Awaits.


























